Contact
+385 95 444 8881
modular@modularstanogradnja.hr
Hrvatski
English
Menu
Contact
News
Real estate sale
Concrete sale
Ceramics sales
Projects
Active projects
Implemented projects
Services
Construction design
Construction
Investments
Resources
Careers
Real estate sale
Concrete sale
16.05.2024.
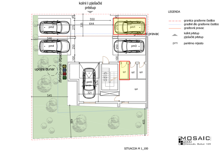
Dvosoban stan u ponudi u Šijani (Pula) za 125.000 eur, 55,02 m2, parkirno mjesto, ostava!
Share post
Address
Mletačka 12, 52100 Pula, Croatia
Contact
+385 95 444 8881
modular@modularstanogradnja.hr
Show on larger map