Real estate sale◉Istra, Pula, Monvidal|Apartment (new construction)
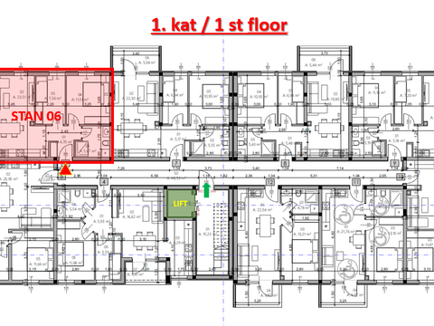
STAN 06 - dvosoban stan, 1 kat (two bedroom apartment, 1 st floor)
Real estate description
Kupnja parkirnog mjesta uz stan je obavezna. Odabir je samostalan od strane kupca bilo da se radi o vanjskom parkirnom mjestu ili garažnom parkirnom mjestu. Obiteljska i invalidska parkinrna mjesta nisu na prodaju. / The purchase of a parking space with the apartment is mandatory. The buyer can choose whether it is an outdoor parking space or a garage parking space.Family and disabled parking spaces are not for sale.
| PARKIRNA MJESTA - cjenik | |||||
| Br. zgrade | Broj parkirnog mjesta | Prodajna cijena pm (€) | Površina sa koef (m²) | Tip | |
| (€) /m2 | PM | ||||
| B | Od broja 1 do broja 32 | 8.162,50 | 2,50 | 3.265 | Vanjsko parkirno mjesto |
| B | Broj 33 i 34 | 22.446,88 | 6,88 | 3.265 | Garažno parkirno mjesto |
| B | Od broja 35 do 39 uključujući i 43 | 24.487,50 | 7,50 | 3.265 | Garažno parkirno mjesto |
| B | Broj 40 | 26.528,13 | 8,13 | 3.265 | Garažno parkirno mjesto |
Basic features
Title
STAN 06 - dvosoban stan, 1 kat (two bedroom apartment, 1 st floor)
Real estate type
Apartment (new construction)
Building number
B
Location
Istra, Pula, Monvidal
Size sqm
54.84
Floors
1
Orientation
NW
No. of rooms
2
Bathroom / WC
1
Move in date
10/2027
Highlighted features
Parking
Garage
Pantry
Security doors
EE certificate
A+
Heating type
Inverter AC
Floor heating
Cooling type
Inverter AC
SAT/TV
Intercom
Outdoor pool
Indoor pool